Buscador
Local en Venta U$S 700.000
ID 447385
Local Comercial - Diagonal Pueyrredón - Mar del Plata
Disponible
Compartir
Street View

Descripción del Inmueble

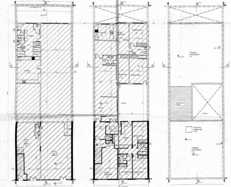
OPORTUNIDAD ÚNICA! LOCAL COMERCIAL EN EL CORAZÓN DE MAR DEL PLATA Ubicación estratégica en Belgrano y Diagonal Pueyrredón, a solo 30 metros del Shopping Los Gallegos y frente al Paseo Diagonal. Un local ideal para quienes buscan alta visibilidad y alto tránsito de peatones. Características principales: - Frente de 10,04 metros y fondo de 33,28 metros, totalizando un terreno de 332 m². - Superficie cubierta de 568,82 m², distribuida en dos plantas. - Perfecto para empresas que necesitan exposición y circulación constante. Distribución: - Planta Baja: Espacio de planta libre totalmente adaptable a cualquier tipo de negocio, con vestuarios para personal y batería de baños para damas y caballeros. - Planta Alta: Acceso independiente a un amplio departamento en estado original, ideal para reciclar y personalizar a tu gusto. Perfecto para oficina o vivienda. Potencial para integrarlo con la planta baja. ¡Versatilidad al máximo! - 5 baños en total, lo que lo hace ideal para cualquier tipo de negocio que requiera alta funcionalidad. - Potencial para desarrollo inmobiliario con alternativas de uso residencial y/o comercial, que se aprecian en las fotos publicadas. ¡No dejes pasar esta oportunidad única de adquirir un espacio con gran potencial en una de las zonas más demandadas de la ciudad! Contáctanos para más información o para agendar una visita. Aviso legal: • Las imágenes publicadas son de carácter ilustrativo y no constituyen documentación contractual. • Las medidas, superficies y proporciones indicadas son aproximadas y tienen fines orientativos. Las definitivas surgirán del título de propiedad correspondiente. • Los valores de venta de los inmuebles pueden modificarse sin previo aviso. • Los importes de impuestos, servicios, tasas y expensas corresponden a la última información disponible y deberán ser verificados por el comprador. • El valor de las expensas, en caso de existir, está sujeto a variaciones.

Detalle del Inmueble

  • Zona: Centro
  • Tipo de Operación: Venta
  • Superficie Total: 332 m2
  • Superficie Cubierta: 568,82 m2
  • Dirección Aprox.: Belgrano 2900
  • Valor: U$S 700.000
  • Vivienda
  • Altura
  • Oficina
  • Vidriera
  • Ubicacion Local: Vía Pública
  • Baños: 5
  • Ultima Actualizacion: 22/09/2025
  • Apto Crédito

Ubicación

Contáctenos

Business Manager Propiedades
Dirección:
Teléfono: +542235353456 / +542233551457
Celular: +542235353456 / +542233551457
cargando
Enviando

Su consulta ha sido enviada

Contáctenos

LLamar WhatsApp
cargando
Enviando

Su consulta ha sido enviada
Nos comunicaremos en la brevedad


Propiedades Similares

Venta

Local en Centro

Código 432575
Moreno 2800
  • 45 m2
  • 45 m2
  • 2
  • VP

Se trata de dos locales unificados - pero con escrituras independientes y que se pueden volver a estado original O sea se pueden volver a dividir, simplemente cerrando la comunicación existente - una arcada - Cuentan cada uno con su baño y una pequeña kitchinet Ideal para RENTA - atento a que el mantenimiento es muy bajo NO CUENTAN CON EXPENSAS Dos cómodos locales a la calle Doble vidriera c/cortina de malla mecánica Muy buen estado Ideal oficinas o comercios Aviso legal: • Las imágenes publicadas son de carácter ilustrativo y no constituyen documentación contractual. • Las medidas, superficies y proporciones indicadas son aproximadas y tienen fines orientativos. Las definitivas surgirán del título de propiedad correspondiente. • Los valores de venta de los inmuebles pueden modificarse sin previo aviso. • Los importes de impuestos, servicios, tasas y expensas corresponden a la última información disponible y deberán ser verificados por el comprador. • El valor de las expensas, en caso de existir, está sujeto a variaciones.

U$S 100.000
Venta

Local en Parque Luro

Código 441275
Avenida Tejedor y Rio Negro
  • 585 m2
  • 463 m2
  • 2
  • VP

Oportunidad Única: Local Comercial Doble Altura Ubicación Privilegiada: En el corazón del vibrante Polo Comercial de Avenida Carlos Tejedor, este local es perfecto para diversos rubros que buscan destacar. Características del Local: • Superficie Total: 463 m² cubiertos. • Planta Baja: 280 m² sin columnas al frente, ideal para una distribución versátil. • Entre Piso: 183 m² aprox. con construcción en seco y doble batería de baños. • Patio Descubierto: 280 m² con piso de hormigón, óptimo para estacionamiento o como área de servicio. Ideal Para: Proyectos comerciales que desean aprovechar una ubicación estratégica con alto flujo de clientes. ¿Por qué elegir este local? Su amplitud y distribución permiten crear un espacio adaptado a tus necesidades, brindando la flexibilidad que tu negocio requiere. ¡No te lo pierdas! Consúltanos al WhatsApp para más información y agenda tu visita. ¡Tu futuro negocio empieza aquí! -Agua corriente -Desagüe cloacal -Energía trifásica Las fotos son referenciales. Alquilado. Se vende con renta. Aviso legal: • Las imágenes publicadas son de carácter ilustrativo y no constituyen documentación contractual. • Las medidas, superficies y proporciones indicadas son aproximadas y tienen fines orientativos. Las definitivas surgirán del título de propiedad correspondiente. • Los valores de venta de los inmuebles pueden modificarse sin previo aviso. • Los importes de impuestos, servicios, tasas y expensas corresponden a la última información disponible y deberán ser verificados por el comprador. • El valor de las expensas, en caso de existir, está sujeto a variaciones.

U$S 590.000
Venta

Local en Lomas de Stella Maris

Código 441652
Almirante Brown y Lavalle
  • 100 m2
  • 100 m2
  • 2
  • VP

ESPECTACULAR LOCAL COMERCIAL - VENTA O ALQUILER ¡Descubre una oportunidad única en Mar del Plata! Te presentamos un espectacular local comercial en una de las ubicaciones privilegiadas de la ciudad, frente al mar y a la hermosa Playa Varese a dos cuadras la Iglesia Stella Maris y una cuadra de Avda. Colon y Bv. Marítimo. Este amplio espacio de 100 metros cuadrados en planta baja, cuenta con dos baños y antebaños, sala de reuniones o privado. Ideal para empresas que buscan destacar en el mejor lugar de la ciudad. Cuenta con una excelente visibilidad y tráfico de personas, lo que lo convierte en el lugar perfecto para iniciar o expandir tu negocio. Su amplia marquesina publicitaria garantiza la exhibición de tu marca y atracción de clientes. El local se encuentra en una zona de gran afluencia turística y residencial, lo que brinda la oportunidad de atraer a una amplia variedad de clientes. Cuenta además, con todas las comodidades necesarias para realizar cualquier tipo de actividad comercial, ya sea para tiendas de ropa y/o accesorios, ventas, oficinas administrativas, cafés, vinotecas, o el emprendimiento de un espacio gastronómico, que no necesite tiraje a cuatro vientos. Para rubros se necesita la habilitación municipal, esta deberá tramitarse por vía de excepción. Tanto si estás interesado en comprar como en alquilar, un local comercial, esta es una oportunidad única, que no puedes dejar pasar. No solo estarás invirtiendo en un espacio de alta demanda, sino que también estarás formando parte de una comunidad comercial exitosa y en crecimiento. Este local es el destino exclusivo que tu empresa merece. Se vende con renta No dejes pasar esta oportunidad. ¡Contáctanos para más información y asegura tu lugar en el corazón de Mar del Plata! Aviso legal: • Las imágenes publicadas son de carácter ilustrativo y no constituyen documentación contractual. • Las medidas, superficies y proporciones indicadas son aproximadas y tienen fines orientativos. Las definitivas surgirán del título de propiedad correspondiente. • Los valores de venta de los inmuebles pueden modificarse sin previo aviso. • Los importes de impuestos, servicios, tasas y expensas corresponden a la última información disponible y deberán ser verificados por el comprador. • El valor de las expensas, en caso de existir, está sujeto a variaciones.

U$S 400.000

Síguenos

Email Llamar WhatsApp